Junior Suite apartment

Junior Suite apartment

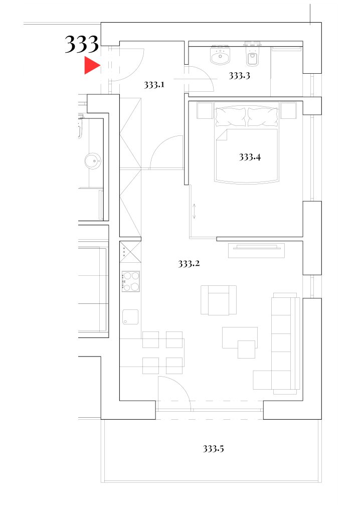
Junior Suite Apartmá disponuje zádveřím s úložným prostorem, útulným obytným pokojem s kuchyňským a jídelním koutem, samostatnou ložnicí, elegantní koupelnou, příjemnou terasou propojující interiér s okolní přírodou. Ideální volba pro ty, kteří si potrpí na prostor, soukromí a špičkový komfort ve švýcarském stylu.

2+kk

Dispozice

10,21 m2

terasa

59,95 m2

Podlahová plocha

1

postel

3NP

podlaží

Výhled

do přírody

Koeficient

Koeficient

0.029243

Očekávaný výnos

Očekávaný výnos

7,6 % p.a.

Technické specifikace

Junior Suite Apartmá nabízí zádveří s úložným prostorem, elegantní koupelnu, útulný obytný pokoj, ložnici a prostornou terasu propojující interiér s okolní přírodou. Celková plocha apartmá je 59,95 m².

Předsíň: 6,47 m²
Pokoj 1: 26,85 m²
Koupelna: 4,44 m²
Pokoj 2: 11,98 m²
Terasa: 10,21 m²

Vybavení resortu

Dvě restaurace

Hotelový shop
Mövenpick

Spa a Wellness

Concierge služba

Fitness
centrum

Padelový kurt

Pokojová služba

Dětská herna

Parkovací místo

Prádelna

Odvoz z/na letiště

Konferenční
místnost

Venkovní
dětské hřiště

Minigolf

Přehled apartmánu

Junior Suite apartment

Prostorný obývací pokoj s kuchyňským koutem vybaveným pro přípravu lehkých pokrmů vytváří příjemnou atmosféru domova daleko od domova.

63,61m2

Balkon

2-4 osob

Klimatizace

Wi-Fi

Pračka

Standard apartment

Útulná předsíň plynule navazuje na ložnici, kde vás čeká kvalitní postel pro ničím nerušený odpočinek.

29,86m2

Lodžie

2-4 osob

Klimatizace

Wi-Fi

Unikátní
SPA & Wellness

Dopřejte si jedinečný zážitek, kde se snoubí relaxace, zdraví a nádherná příroda. Ve třetím patře našeho resortu vznikne moderní SPA & Wellness zóna o rozloze 430 m2, která nabídne dokonalé spojení komfortu a designu s dechberoucími výhledy na okolní kopce.

Naše jedinečná metodika SPA procedur byla navržena tak, aby podpořila vitalitu, zdraví a vnitřní rovnováhu každého hosta.

Objevte místo, kde se luxus prolíná s přírodou – oáza klidu a přírody přímo v srdci Beskyd.
Autoři návrhu relaxační zóny je litevská společnost E77, která je významnou firmou
v oblasti wellness designu a konzultací.

Vybavení SPA & Wellness

Vnitřní vířivka –
dostatek prostoru
pro absolutní uvolnění

Venkovní bazén –
výhled na
beskydskou přírodu

Aromaterapeutická místnost
– unikátní procedura
působící na všechny smysly

Masážní a terapeutické
místnosti

Relax zóna

Fitness zóna

Vitality zóna

Saunový svět

Nákupy
v Ostravě a okolí

V Ostravě a jejím okolí najdete moderní obchodní centra i menší obchůdky s lokální nabídkou.

#

Sport a zábava
v okolí Čeladné

Čeladná nabízí široké možnosti sportovního vyžití od golfového hřiště až po turistické a cyklistické trasy.

#

Památky a zajímavosti
v okolí Čeladné

V blízkosti Čeladné můžete objevovat historické památky, přírodní krásy i malebné beskydské vesničky.

#

Kontaktní údaje

NEONATO, s.r.o.

IČ: 27721175

Máte otázky?