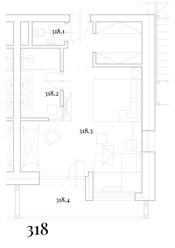
Standard apartment
Útulná předsíň plynule navazuje na ložnici, kde vás čeká kvalitní postel pro ničím nerušený odpočinek. Součástí apartmá je moderní koupelna vybavená prvotřídními kosmetickými doplňky. Skvělým místem k relaxaci je soukromá lodžie, odkud se otevírá panoramatický výhled na beskydskou krajinu.
1+0
Dispozice
7,07 m2
Lodžie
44,14 m2
Podlahová plocha
1
postel
3NP
podlaží
Výhled
do přírody
Koeficient
1.021531
Očekávaný výnos
7,6 % p.a.
Technické specifikace
Standard apartmá nabízí zádveří s úložným prostorem, elegantní koupelnu, útulný obytný pokoj a příjemnou lodžii propojující interiér s okolní přírodou. Každý detail odráží švýcarskou kvalitu a nadčasový design. Celková plocha apartmá je 44,14 m².
- WC: 1,39 m²
- Koupelna: 4,96 m²
- Pokoj: 30,72 m²
- Lodžie: 7,07 m²






